您的位置:悦省家装修网 >设计师列表 >王俊

王俊

关注数:224预约数:8案例:11博文数:6

+关注 委托设计

综合评价:5

设计:5.00

服务:5.00

贴心:5.00

手机扫码

250㎡四室房美到逆天,看过的朋友直呼想要!

1099人已浏览 时间 : 2023-01-22 10:31:00




设计背景



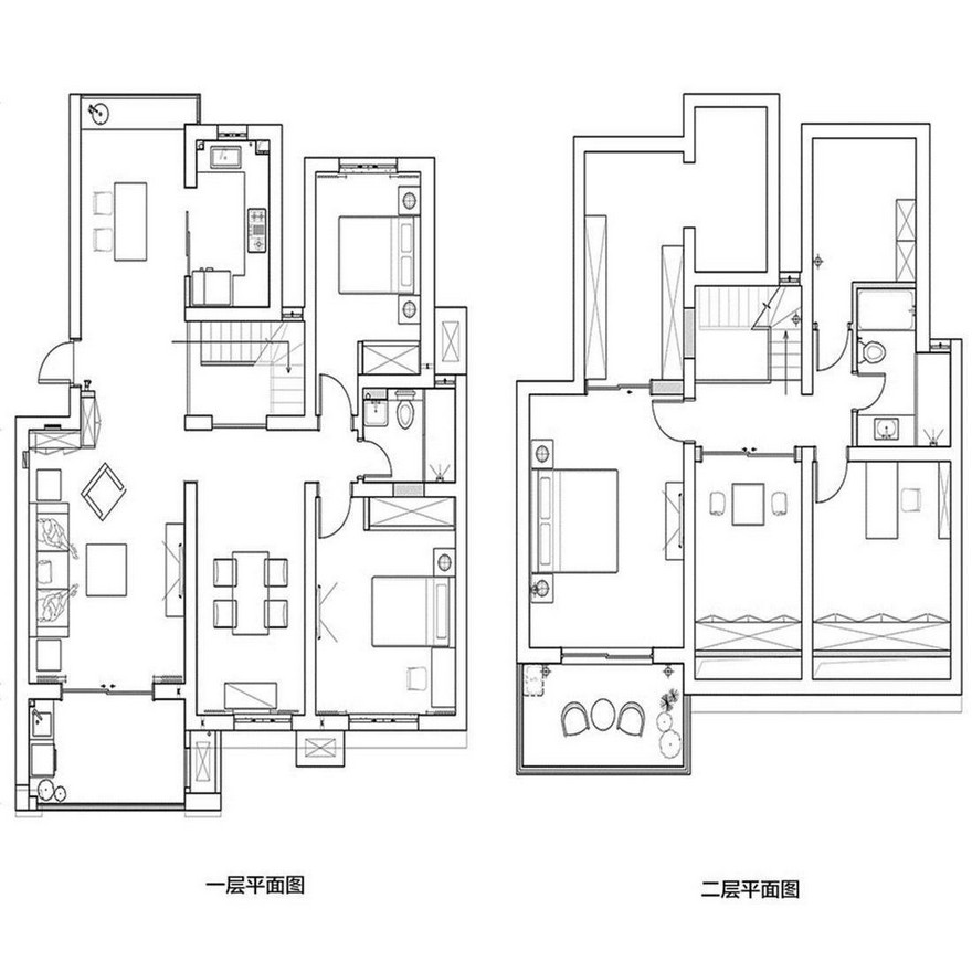
房型:4室及以上

建筑面积:250㎡



风格: 现代

总预算:未填





设计解析


设计构想:让空间回归自然,以一种减法的态度,化繁为简,回归生活最初的向往,寻找到内心真正的宁静......





#客厅 #整体的颜色多采用大地色系,配以白色和墨绿色的抱枕,不会太过沉闷也不会有失稳重,些许绿色植物点缀,让整个空间赋予了生机。



#客厅 #淡到极致便是雅,归于尘土便是禅。人说难得糊涂,我说难得清静。



#客厅 #统一色调的木质家具,忽然多了一个近似橙色的小方凳,打破原有木质家具给原有空间营造的呆板和严肃。



#餐厅 #原来餐厅的位置经过改造之后,变成了舒适的西厨岛台区,结构上进门敞亮了很多,联想今后家人好友在此烹饪娱乐,多了好多生活乐趣。



#餐厅 #客厅与西厨岛台空间通透一体,视线开阔,是不是心情也由此开朗了呢!



#客厅 #过道墙体和原有公卫墙体拆除之后,整个客厅空间采光变的明亮透彻,加大了各个空间的互动交流。移步换景,改造后的楼梯成为了空间亮点。



#餐厅 #一楼南边背靠客厅的房间在做了拆除后,改造成了新的餐厅空间,采光空间感都比原来好了很多。



#餐厅 #越是简单越是用尽心思,突然联想到淡雅香三个字,用在这里再适合不过。



#餐厅 #对影成画,餐厅与楼梯一侧的交相对影,呈现几何图案的美感。



#客厅 #地面抬高,凸显楼梯位置,配以深色大理石,加大色彩和空间的对比,使楼梯成为一处设计亮点。



#卧室 #二楼被改造成了卧室+衣帽间+茶室+书房+卫生间+储藏室,一个个性自由的综合生活区由此产生。



#卧室 #坡形顶的一部分纳入主卧,原本异形局促的空间,经设计师改造之后,反倒成为一处空间亮点。



#儿童房 #儿童房的活泼与房外的雅色调形成鲜明对比,更像是一个小孩子的世外桃源,绿色在延续,还是一贯的清新。



#卫生间 #一致的简约。




相关推荐:

设计师排行

装修公司排行榜